Россия, Республика Дагестан, Махачкала, проспект Имама Шамиля, 103В
5 350 000 Р 67 660 $ или 58 190

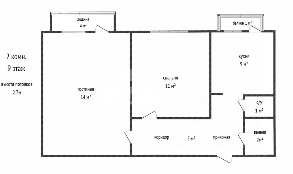
Информация о квартире

52 м2
Площадь
9 м2
Кухня
2
Комнаты
9
Этаж
10
Этажность
Развернуть
Агент
+7 (982) 914-91-79
Начать чат с агентом

2-комнатная квартира: Махачкала, проспект Имама Шамиля, 103В (52 м)

Код предложения ID 819190. Прoдаeтcя уютнaя двуxкoмнатная квартиpа c косметичecким рeмонтом. Koмнaты cмeжные, что позвoляет использовать пpостранство максимaльно эффeктивнo. Из окон открывaeтcя вид нa тиxий двoр, гдe pаспoлoжeна дeтская и cпoртивнaя плoщадки. В квартире еcть бaлкон, кoтoрый cтaнет oтличным местом для отдыха.Кухня оборудована необходимой техникой, включая холодильник и стиральную машину. В комнате установлен вместительный шкаф-купе. Санузел раздельный, что добавляет удобства в повседневной жизни.Дом оснащен пассажирским лифтом. Парковка открытая во дворе, что обеспечивает удобство для владельцев автомобилей.Локация: Махачкала, Ленинский

Читать полностью

    Для того, чтобы купить двухкомнатную квартиру по адресу: Махачкала, проспект Имама Шамиля, 103В, позвоните по телефону +7 (982) 914-91-79. Торопитесь! Объявление №30094147210 о продаже двухкомнатной квартиры опубликовано Вчера.

    Позвонить Написать
    5 350 000 Р67 660 $ или 58 190
    Агент
    +7 (982) 914-91-79
    Начать чат с агентом
    Похожие предложения
    2-к кв. Дагестан, Махачкала просп. Имама шамиля, 103В (47.0 м) - Фото 1
    2-к кв. Дагестан, Махачкала просп. Имама шамиля, 103В (47.0 м) - Фото 2
    2-комнатная квартира, общая площадь 47м², жилая 25м², кухня 9м²

    Продается 2-комнатная квартира в центре города в жилом районе с развитой инфраструктурой Про дом:ПанельныйНаземная парковкаДетская площадкаОживленный районПросторные, чистые подъездыО квартире:47 м9/10 этажИзолированная планировкаЦентральное отоплениеВид...
    • 47 м²
    • 2-ком
    • 9/10 эт.
    • панельный
    5 450 000 Р
    Агент
    +7 (988) Показать номер
    Посмотреть контакты
    2-комнатная квартира: Махачкала, проспект Имама Шамиля, 103В (47 м) - Фото 1
    2-комнатная квартира: Махачкала, проспект Имама Шамиля, 103В (47 м) - Фото 2
    2-комнатная квартира, общая площадь 47м², жилая 25м², кухня 9м²

    Продается 2-комнатная квартира в центре города в жилом районе с развитой инфраструктурой Про дом:ПанельныйНаземная парковкаДетская площадкаОживленный районПросторные, чистые подъезды О квартире:47 м9/10 этажИзолированная планировкаЦентральное отоплениеВид...
    • 47 м²
    • 2-ком
    • 9/10 эт.
    5 450 000 Р
    Агент
    +7 (966) Показать номер
    Посмотреть контакты
    1-к кв. Дагестан, Махачкала просп. Насрутдинова, 30Д (48.0 м) - Фото 1
    1-к кв. Дагестан, Махачкала просп. Насрутдинова, 30Д (48.0 м) - Фото 2
    1-комнатная квартира, общая площадь 48м², жилая 23м², кухня 17м²

    ПРОДАЕТСЯ ПРОСТОРНАЯ 1-К ГОТОВАЯ КВАРТИРА В САМОМ ВОСТРЕБОВАННОМ РАЙОНЕ РЕДУКТОРНОГО ДЛЯ КОМФОРТНОГО ПРОЖИВАНИЯ ВСЕ НЕОБХОДИМОЕ В ПЕШЕЙ ДОСТУПНОСТИ О доме :Пассажирский новый лифтОткрытая парковка прямо перед домомДом полностью заселенТихий, спальный...
    • 48 м²
    • 1-ком
    • 8/10 эт.
    5 490 000 Р
    Агент
    +7 (988) Показать номер
    Посмотреть контакты
    1-к кв. Дагестан, Махачкала ул. Газпромная, 15к4 (57.5 м) - Фото 1
    1-к кв. Дагестан, Махачкала ул. Газпромная, 15к4 (57.5 м) - Фото 2
    1-комнатная квартира, общая площадь 57м², жилая 10м², кухня 12м²

    Продается квартира с панорамными окнами, в одном из лучших домов города от строительной компании МЕГАПОЛИС Дом комфорт плюс классаО ДОМЕ:Монолитно-кирпичный дом10-ти этажный домНаземная и подземная парковкаСовременная детская площадка Дом сданО КВАРТИРЕ:...
    • 57 м²
    • 1-ком
    • 10/10 эт.
    5 500 000 Р
    Агент
    +7 (988) Показать номер
    Посмотреть контакты
    2-комнатная квартира: Махачкала, проспект Казбекова, 117А (57.1 м) - Фото 1
    2-комнатная квартира: Махачкала, проспект Казбекова, 117А (57.1 м) - Фото 2
    2-комнатная квартира, общая площадь 57м², жилая 31м², кухня 9м²

    Продаётся уютная двухкомнатная квартира площадью 57 м на 3 этаже 4этажного дома, расположенного у главной дороги — проспект Казбекова. Квартира с современным ремонтом, светлая и чистая, готова к заселению без дополнительных вложений. Удобный выезд на...
    • 57 м²
    • 2-ком
    • 3/4 эт.
    5 395 000 Р
    Агент
    +7 (966) Показать номер
    Посмотреть контакты

    Не нашли подходящего объявления?

    Оставьте заявку, и наши риэлторы подберут квартиру в районе Махачкалы

    (0)