Реализация объекта недвижимости приостановлена

Информация о коттедже

450.0 м2
Площадь
2
Этажность
6.0 cоток
Участок

Дополнительная информация

Дом продаётся вместе с участком
есть
Развернуть

Дом в Каспийск, улица Калинина (450 м)

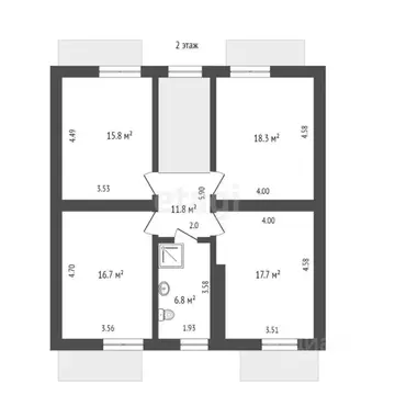
Продается капитальный дом общей площадью 450 м на земельном участке 6 соток в центре Каспийска. Объект находится в высокой степени готовности, что позволяет новым владельцам быстро завершить отделку в соответствии с личными предпочтениями. Архитектура дома продумана для комфортной жизни большой семьи или для организации гостевого пространства. На цокольном этаже площадью 130 м выполнен полноценный ремонт; помещение с подведенными коммуникациями идеально подходит для организации кондитерского производства, мастерской, тренажерного зала или зоны отдыха. Основная жилая часть включает два просторных этажа. На первом этаже 140 м -- расположена гостиная , кухня и спальня со своей гардеробной.На втором этаже 137 м — три изолированные спальни, две из которых оборудованы гардеробными комнатами, и рабочий кабинет. Дополнительно в мансарде находится помещение 70 м, которое можно адаптировать под бильярдную, библиотеку или дополнительную спальню. Отдельно стоит летняя кухня площадью 40 м для приятного времяпрепровождения во дворе. Строительство велось с строгим соблюдением технологий с применением качественных материалов, выполнены все черновые работы, подведены и подключены все необходимые коммуникации, оформлены лицевые счета. Ключевым преимуществом является готовность к финишной отделке: осталось выполнить поклейку обоев и наружную облицовку фасада. Участок позволяет разместить место для машин и зону для отдыха. Локация в центре города обеспечивает отличную транспортную доступность и развитую инфраструктуру в шаговой доступности.Данное предложение представляет собой оптимальное сочетание цены, качества и удачного расположения.Наличие собственных документов и чистая юридическая история позволяют провести сделку максимально быстро и прозрачно. Предоставляется бесплатное юридическое сопровождение для полной безопасности покупателя. Гибкий график просмотров дает возможность лично оценить все преимущества объекта в удобное время. Процент комиссии для покупателя составляет 2 от суммы завершенной сделки. Для детальной консультации и организации просмотра доступен для связи в любое время. Код пользователя: 166259Номер в базе: 9873405

Читать полностью

    Реализация объекта недвижимости приостановлена

    Не нашли подходящего объявления?

    Оставьте заявку, и наши риэлторы подберут купить дом в районе Каспийска

    (0)