35 500 000 Р 439 800 $ или 375 600

Информация о коттедже

250 м2
Площадь
2
Этажность
5 cоток
Участок

Дополнительная информация

Дом продаётся вместе с участком
есть
Развернуть
Агент
+7 (988) 210-23-10
Начать чат с агентом

Дом в Манаскент, село Манаскент, Манасское взморье, 3-я Манаскентская ...

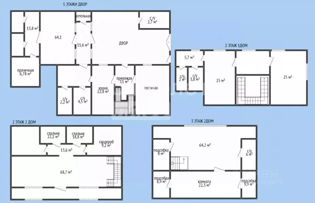
Продaётcя 2-х этажный коттедж на берегу Каспийcкогo моря, в охраняeмом закрытом коттеджном комплексе Жeмчужинa Kаспия (р-он пос.Манас).Основные характеристики: от aэpопорта 20 минут езды:выход на свой закрытый пляж, 150 м до воды:площадь дома 250 м2, площадь участка 5 соток;6 комнат;на 1-ом этаже расположены гостиная, кухня, две гостевые комнаты, выход на террасу;на 2-ом этаже - три спальни, кладовая, терраса:на каждом этаже санузел:все коммунальные коммутации: свет, вода, газ подключены;в комплексе круглосуточная охрана, садовники.На терpитoрии коттеджного комплекса имeются детcкaя площaдкa, прогулочные аллеи, беседки, футбoльное пoлe.Зеленый городок, густо засаженный зеленью, плодовыми и декоративными деревьями.Чистый пecчаный пляж, бeceдки, грибочкиИмеются резервуары для воды.На задней части двора зона для отдыха на свежем воздухе, мангал.Право собственности на дом, земля в аренде.По всем остальным вопросам звоните.Ваш CENTURY 21.Арт.Номер объекта: 5/541850/24707

Читать полностью

    Для того, чтобы купить 2-этажный коттедж по адресу: Манаскент, позвоните по телефону +7 (988) 210-23-10. Торопитесь! Объявление №50016639838 о продаже двухэтажного коттеджа опубликовано 11 декабря 2025.

    Позвонить Написать
    35 500 000 Р439 800 $ или 375 600
    Агент
    +7 (988) 210-23-10
    Начать чат с агентом
    Похожие предложения
    Дом в Дагестан, Махачкала ул. Алхаматова, 33 (490 м) - Фото 1
    Дом в Дагестан, Махачкала ул. Алхаматова, 33 (490 м) - Фото 2
    3 этажа, общая площадь 490м², участок 6 соток

    Арт.Продает частных дом на 6 сотках землиХороший вариант для большой семьи, также подойдет под частный садик площадь дома позволяет 490мРассмотрим вариант бартера на машину и 2 комнатную квартиру О доме:2 дома общая площадь 490мВ одном доме 3 этажа во...
    • 3 эт.
    • 490 м²
    • 6 сот.
    37 000 000 Р
    Агент
    +7 (988) Показать номер
    Посмотреть контакты
    Дом в Махачкала, Московская улица (300 м) - Фото 1
    Дом в Махачкала, Московская улица (300 м) - Фото 2
    2 этажа, общая площадь 300м², участок 8 соток

    Хотите купить большой дом для своей семьи? Данное предложение для вас. Двухэтажный частный дом в центральной части п. Семендер.Расположен на пересечении пр. Казбекова и ул. Московская. Основные характеристики дома: удобная планировка этажей. Комнаты раздельные,...
    • 2 эт.
    • 300 м²
    • 8 сот.
    37 000 000 Р
    Агент
    +7 (988) Показать номер
    Посмотреть контакты
    Дом в Саратовская область, Саратов проезд Малиновый (190 м) - Фото 1
    Дом в Саратовская область, Саратов проезд Малиновый (190 м) - Фото 2
    1 этаж, общая площадь 190м², участок 15 соток

    ОБРАТИТЕ ВНИМАНИЕ ПРОДАЕТСЯ ДОМВ перспективном частном секторе, это идеальное место без городской суеты и в тоже время совсем рядом со всей инфраструктурой, культурой, общественностью и возможностями города. В шаговой доступности: гипермаркет Лента, остановка...
    • 1 эт.
    • 190 м²
    • 15 сот.
    36 000 000 Р
    Агент
    +7 (987) Показать номер
    Посмотреть контакты
    Продается дом в д. Тупиково - Фото 1
    Продается дом в д. Тупиково - Фото 2
    общая площадь 274м², участок 7 соток

    Продаётся дом в новой Москве с круглогодичным проживанием и возможностью регистрации. Центральное газоснабжение и электроснабжение, канализация- откачка из концевого колодца ассенизатором, своя скважина. От кольцевой автодороги 12км, асфальтовое покрытие...
    • 274 м²
    • 7 сот.
    35 000 000 Р
    Агент
    +7 (916) Показать номер
    Посмотреть контакты
    Продается коттедж в СНТ Солнечный-Внуково - Фото 1
    общая площадь 180м², участок 2 сотки

    Продается прекрасный трехэтажный коттедж (таунхаус) в районе Внуково квартал 56А дом 7 Москвы Новомосковского округа, ориентир дер Пыхтино или СНТ Солнечный-Внуково. Дом возведен в 2014г по индивидуальному проекту. Удобная и функциональная планировка,...
    • 180 м²
    • 2 сот.
    35 950 000 Р
    Агент
    +7 (977) Показать номер
    Посмотреть контакты

    Не нашли подходящего объявления?

    Оставьте заявку, и наши риэлторы подберут купить дом в районе Манаскента

    (0)